2803 W Cypress Avenue $334,900
Seller is in the process of replacing a few screens and getting sod in back yard. New photos to follow.
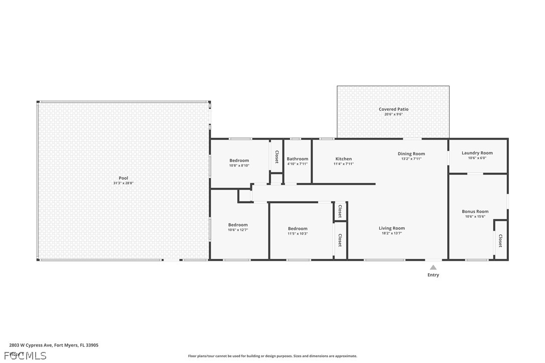
Finding a 4-bedroom pool home in Fort Myers Shores—without flood insurance requirements—is rare.
Originally designed for personal use, this home reflects a focus on durability, functionality, and long-term enjoyment. All-tile flooring runs throughout the home, with removable carpet in two bedrooms for added comfort and flexibility. Accordion shutters provide protection for all windows and doors, offering added peace of mind. The carport was enclosed to create a true 4th bedroom with a separate entrance—ideal for guests, a home office, or potential rental income.
In 2007, a custom pool and thoughtfully over-engineered screen enclosure were added, built for strength and longevity. The fully fenced backyard and private pool create a setting designed for both relaxing and entertaining.
Inside, fresh interior paint and electrical updates offer a clean starting point for your personal updates and design vision, while the flexible layout accommodates a variety of living situations.
Located in an established, non-HOA neighborhood known for its minimal restrictions and convenient access to SR-31, I-75, downtown Fort Myers, and the Caloosahatchee River, this property offers a level of freedom that’s becoming increasingly difficult to find. Just minutes from Shores Nature Park and the Davis boat ramp with public access, and a short drive to Babcock Ranch, Franklin Locks Park, and nearby shopping and dining—including Publix and Aldi—you can enjoy a laid-back, riverfront lifestyle without the added expense.
Shown by appointment only. Schedule your private showing today. Agents please read Confidential Remarks.
General Amenities
Interior Amenities
Exterior Amenities
Landscape Amenities
Community Amenities
Appliance Amenities
Accessibility Amenities
- Beds
- 4
- Baths
- 1.00
- Ft2
- 1,288
- Lot Acres
- 0.17
- Year Built
- 1979
- Heat
- Central,Electric
- Roof
- Shingle
Virtual Tour
2803 W Cypress Avenue
Fort Myers, Florida 33905
United States
Fort Myers, Florida 33905
United States
Subdivision: FORT MYERS SHORES
County: Lee
Sale Type: For Sale
Ref #: 2026013112
Last Updated: Sunday, 12 April 2026 01:38
Category: Single Family
Listed by Realty One Group MVP on Friday, 20 March 2026 [For Sale]
- Beds
- 4
- Baths
- 1.00
- Ft2
- 1,288
- Lot Acres
- 0.17
- Heat
- Central,Electric
- Cooling
- CentralAir,CeilingFans,Electric
- Roof
- Shingle
- Year Built
- 1979
- Beds
- 4
- Baths
- 1.00
- Ft2
- 1,288
- Lot Acres
- 0.17
- Year Built
- 1979
- Heat
- Central,Electric
- Roof
- Shingle
Virtual Tour
2803 W Cypress Avenue
Fort Myers, Florida 33905
United States
Fort Myers, Florida 33905
United States
Subdivision: FORT MYERS SHORES
County: Lee
Sale Type: For Sale
Ref #: 2026013112
Last Updated: Sunday, 12 April 2026 01:38
Category: Single Family
Listed by Realty One Group MVP on Friday, 20 March 2026 [For Sale]
