9720 Gladiolus Preserve Circle $465,000
Welcome to your next chapter. This move-in-ready pool home is tucked inside the gated community, Gladiolus Preserve, where convenience is not optional, it’s built in.
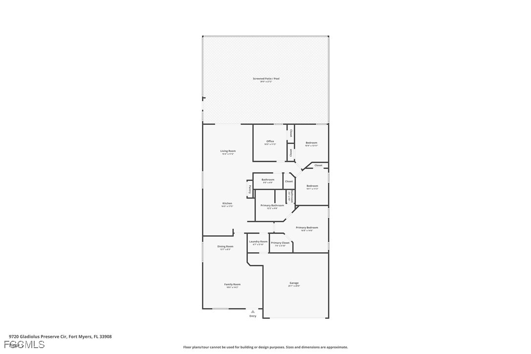
This home checks the big-ticket boxes buyers actually care about. Roof replaced in November 2022, hurricane impact windows and sliders, and a layout that finally makes sense. The spacious family room greets you upon entering, flowing beautifully to the kitchen, and leads you out to the screened in lanai, creating the perfect setup for entertaining, relaxing, or escaping Florida summers in your private pool. With 4 bedrooms, there is plenty of room for guests and an office if one wants. The fenced in yard is also a perk for someone with pets or just looking for additional privacy.
Located just minutes from major hospitals, top shopping and dining, and a straight shot to Fort Myers Beach, this community offers the ideal balance of privacy and proximity. Whether you're commuting, hosting guests, or enjoying weekend beach days, everything you need is right where you want it.
This is not a fixer. Not a gamble. Not a “maybe later” home. It’s solid, updated, and ready for its next chapter.
Schedule your showing and see why this one stands out from the rest.
General Amenities
Interior Amenities
Exterior Amenities
Landscape Amenities
Community Amenities
Appliance Amenities
Accessibility Amenities
- Beds
- 4
- Baths
- 2.00
- Ft2
- 1,937
- Lot Acres
- 0.15
- Year Built
- 2004
- Heat
- Central,Electric
- Roof
- Shingle
Virtual Tour
9720 Gladiolus Preserve Circle
Fort Myers, Florida 33908
United States
Fort Myers, Florida 33908
United States
Subdivision: GLADIOLUS PRESERVE
County: Lee
Sale Type: For Sale
Ref #: 2025024780
Last Updated: Friday, 19 December 2025 01:39
Category: Single Family
Listed by Real Broker, LLC
- Beds
- 4
- Baths
- 2.00
- Ft2
- 1,937
- Lot Acres
- 0.15
- Heat
- Central,Electric
- Cooling
- CentralAir,CeilingFans,Electric
- Roof
- Shingle
- Year Built
- 2004
- Garage Size
- 2
- HOA
- Yes
- Beds
- 4
- Baths
- 2.00
- Ft2
- 1,937
- Lot Acres
- 0.15
- Year Built
- 2004
- Heat
- Central,Electric
- Roof
- Shingle
Virtual Tour
9720 Gladiolus Preserve Circle
Fort Myers, Florida 33908
United States
Fort Myers, Florida 33908
United States
Subdivision: GLADIOLUS PRESERVE
County: Lee
Sale Type: For Sale
Ref #: 2025024780
Last Updated: Friday, 19 December 2025 01:39
Category: Single Family
Listed by Real Broker, LLC
