2606 Second Street $1,175,000
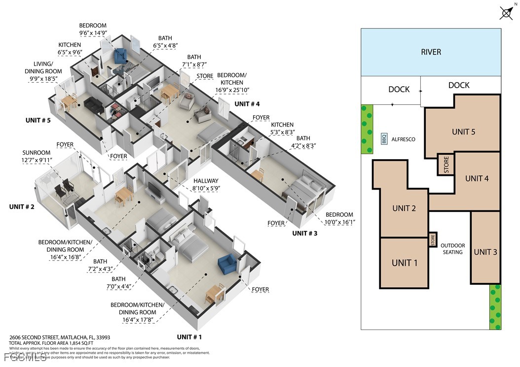
Rare opportunity in the heart of the Matlacha Historic District—a beautifully renovated waterfront duplex uniquely configured with five bedrooms, five bathrooms, and individual efficiency-style kitchenettes. While officially classified as a duplex, the interior layout offers exceptional flexibility: each bedroom suite functions as an independent studio-style unit, creating an attractive income-producing property with five rentable studios.
The building has been freshly updated throughout, and the furnishings and interior décor are nearly brand new. Guests and tenants enjoy ample on-site parking and a wind-protected central courtyard that adds privacy and charm.
Located directly on open saltwater with immediate boating access, the property features a double boat dock and generous outdoor seating areas overlooking the water. Positioned perfectly on the sunset-facing side, the dock and rear terrace capture breathtaking Florida sunsets that define the Matlacha lifestyle.
This is a truly exceptional location—right in the center of Matlacha’s Historic District, walkable to shops, art galleries, restaurants, and waterfront attractions. Properties with this combination of charm, income strength, and direct water access rarely come to market.
Ideal for investors seeking a proven revenue property, or for buyers wanting a flexible-use waterfront home with built-in income potential. A standout opportunity in one of Southwest Florida’s most iconic and sought-after waterfront communities.
General Amenities
Interior Amenities
Exterior Amenities
Landscape Amenities
Community Amenities
- Beds
- 5
- Baths
- 5.00
- Lot Acres
- 0.08
- Year Built
- 1952
- Heat
- Central,Electric
- Roof
- BuiltUp,Flat
Virtual Tour
2606 Second Street
Matlacha, Florida 33993
United States
Matlacha, Florida 33993
United States
Subdivision: CROWS OF MATLACHA
County: Lee
Sale Type: For Sale
Ref #: 2025023425
Last Updated: Monday, 15 December 2025 08:31
Category: Multi-Family
Listed by Select Realty Associates, Inc.
- Beds
- 5
- Baths
- 5.00
- Lot Acres
- 0.08
- Heat
- Central,Electric
- Cooling
- CentralAir,Electric
- Roof
- BuiltUp,Flat
- Year Built
- 1952
- Frontage
- Yes
- Beds
- 5
- Baths
- 5.00
- Lot Acres
- 0.08
- Year Built
- 1952
- Heat
- Central,Electric
- Roof
- BuiltUp,Flat
Virtual Tour
2606 Second Street
Matlacha, Florida 33993
United States
Matlacha, Florida 33993
United States
Subdivision: CROWS OF MATLACHA
County: Lee
Sale Type: For Sale
Ref #: 2025023425
Last Updated: Monday, 15 December 2025 08:31
Category: Multi-Family
Listed by Select Realty Associates, Inc.
