14514 Dolce Vista Road, Apt 102 $435,000
STUNNING FIRST-FLOOR COACH HOME IN LUCAYA!
Welcome to this beautifully appointed end-unit residence in the upscale, gated community of Lucaya, offering exceptional privacy and serene views of a natural waterway and lush mangrove preserve. Enjoy breathtaking sunsets from your expansive Lanai! This home is offered turn-key furnished and ready for immediate enjoyment.
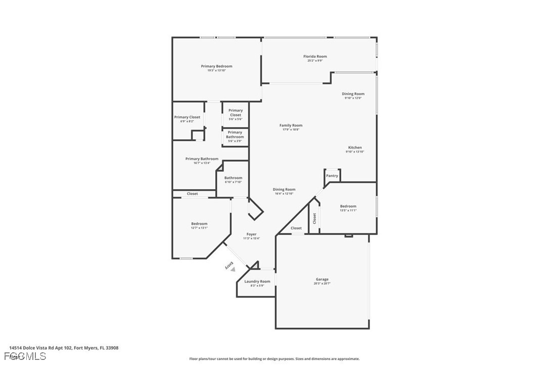
With 1,975 sq. ft. of living space, this spacious first-floor home features 3 bedrooms, 2 baths, and a side-loading 2-car garage with convenient guest parking just steps away. Triple sliding glass doors open to a huge screened Lanai, complete with remote-controlled electric hurricane fabric shutters, creating the perfect indoor-outdoor retreat.
Designed for both comfort and style, the open great-room floor plan showcases 10’ ceilings, 8’ doorways, crown molding, 5” baseboards, and tile flooring throughout, including newer 20” diagonal tile in the main living areas, kitchen, primary suite, and guest bedroom. The home also includes white window blinds, ceiling fans with light kits in every room, and a separate laundry room with cabinetry, sink, washer, and dryer.
The beautifully upgraded kitchen features soft-close cabinetry, 42” upper cabinets, Corian countertops, a tile backsplash, spacious pantry, and a large breakfast bar—perfect for entertaining.
The primary suite is a true retreat, offering tranquil preserve and water views, private lanai access, two walk-in closets, and a spa-like en-suite bath with dual Corian vanities, soaking tub, walk-in shower with frameless glass, upgraded tile, and shampoo niche, linen closet, and a private water closet. Both guest bedrooms are generously sized with ample closet space, and the guest bath includes upgraded wall tile, a full tub/shower, and a shampoo niche.
Lucaya offers an exceptional lifestyle, featuring a heated resort-style pool and spa, brick-paver sun deck with ample seating, covered gathering areas, and stunning lake and fountain views. The clubhouse includes a social room, catering kitchen, lending library, Wi-Fi, and a remodeled, well-equipped fitness center. A second, more intimate pool with grilling area adds even more flexibility for relaxing or entertaining.
All of this is just minutes from the white-sand beaches of Fort Myers Beach and Sanibel Island, Excellent restaurants, Shopping, Theaters, Golf Courses, Hospitals & RSW International Airport. Located within 6 miles of the Beautiful Downtown River District where you will enjoy all the Unique Shops, Boutiques, Entertainment, Restaurants, Music & Art Festivals & more! Don't Miss This Opportunity to Own your Piece of Paradise in
one of the area’s most desirable gated communities!
General Amenities
Interior Amenities
Exterior Amenities
Landscape Amenities
Community Amenities
Appliance Amenities
Accessibility Amenities
- Beds
- 3
- Baths
- 2.00
- Ft2
- 2,034
- Year Built
- 2006
- Heat
- Central,Electric
- Roof
- Tile
Virtual Tour
14514 Dolce Vista Road, Apt 102
Fort Myers, Florida 33908
United States
Fort Myers, Florida 33908
United States
Subdivision: GRAYCLIFF
County: Lee
Sale Type: For Sale
Ref #: 2026005478
Last Updated: Tuesday, 03 February 2026 04:42
Category: Condo / Town Home
Listed by SW Fl Luxury Properties
- Beds
- 3
- Baths
- 2.00
- Ft2
- 2,034
- Heat
- Central,Electric
- Cooling
- CentralAir,CeilingFans,Electric,HumidityControl
- Roof
- Tile
- Year Built
- 2006
- Garage Size
- 2
- Frontage
- Yes
- HOA
- Yes
- Beds
- 3
- Baths
- 2.00
- Ft2
- 2,034
- Year Built
- 2006
- Heat
- Central,Electric
- Roof
- Tile
Virtual Tour
14514 Dolce Vista Road, Apt 102
Fort Myers, Florida 33908
United States
Fort Myers, Florida 33908
United States
Subdivision: GRAYCLIFF
County: Lee
Sale Type: For Sale
Ref #: 2026005478
Last Updated: Tuesday, 03 February 2026 04:42
Category: Condo / Town Home
Listed by SW Fl Luxury Properties
