5606 Malt Drive, Apt 2 $192,000
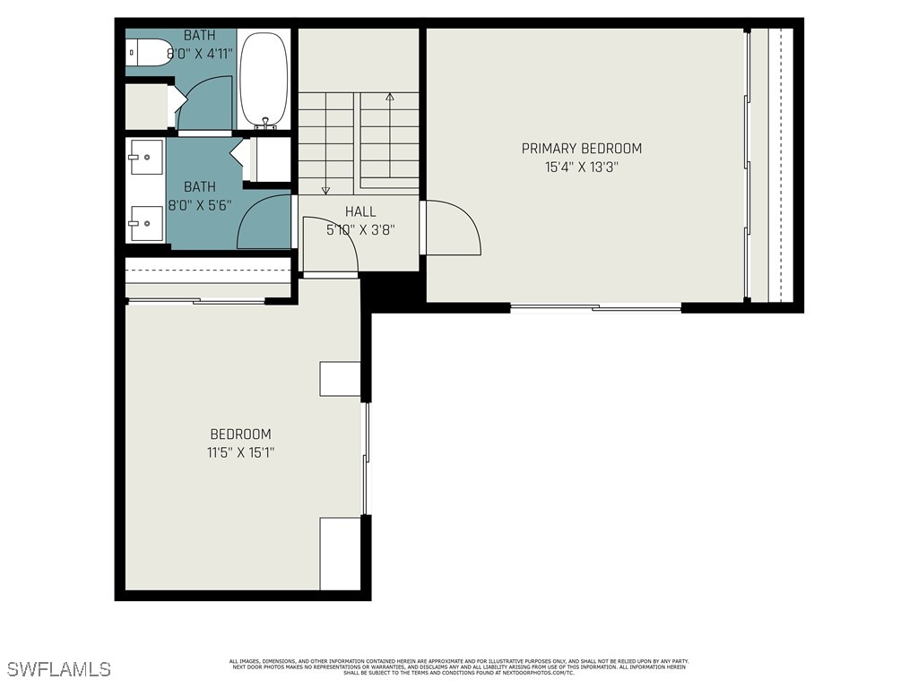
Discover the epitome of Southwest Florida living in this charming and centrally located townhome in the heart of Fort Myers. Step inside to a bright, open layout where natural light pours through sliding glass doors, creating an inviting atmosphere in the kitchen and living areas. Thoughtfully designed for comfort and convenience, the home features a full bathroom on both the main level and upstairs—ideal for hosting guests or streamlining daily living. Inside unit laundry with full-sized washer and dryer. Enjoy peace of mind with a new roof, offering added value and long-term durability. The spacious interior is a perfect blank canvas ready for your personal touch, while outside, a private gated patio invites you to relax with morning coffee or evening relaxation. Both bedrooms offer their OWN BALCONIES —perfect for enjoying the Florida breeze. Located just steps from the community pool and close to everyday essentials, this home combines tranquility with accessibility. Whether you're a first-time buyer, seasonal resident, or savvy investor, this townhome is a rare find in a prime Central Fort Myers location. Ideally nestled between Summerlin Road and US-41, this home places you just minutes from everything—grocery stores, top-rated restaurants, and only a 20-minute drive to the sandy shores of the Gulf.
General Amenities
Interior Amenities
Exterior Amenities
Landscape Amenities
Community Amenities
Appliance Amenities
Accessibility Amenities
- Beds
- 2
- Baths
- 2.00
- Ft2
- 1,260
- Lot Acres
- 0.02
- Year Built
- 1979
- Heat
- Central,Electric
- Roof
- Tile
Virtual Tour
5606 Malt Drive, Apt 2
Fort Myers, Florida 33907
United States
Fort Myers, Florida 33907
United States
Subdivision: PARKWOODS TOWNHOUSE COMMUNITY
County: Lee
Sale Type: For Sale
Ref #: 225045076
Category: Condo / Town Home
Listed by Coldwell Banker Realty
- Beds
- 2
- Baths
- 2.00
- Ft2
- 1,260
- Lot Acres
- 0.02
- Heat
- Central,Electric
- Cooling
- CentralAir,CeilingFans,Electric
- Roof
- Tile
- Year Built
- 1979
- REO
- Yes
- HOA
- Yes
- Beds
- 2
- Baths
- 2.00
- Ft2
- 1,260
- Lot Acres
- 0.02
- Year Built
- 1979
- Heat
- Central,Electric
- Roof
- Tile
Virtual Tour
5606 Malt Drive, Apt 2
Fort Myers, Florida 33907
United States
Fort Myers, Florida 33907
United States
Subdivision: PARKWOODS TOWNHOUSE COMMUNITY
County: Lee
Sale Type: For Sale
Ref #: 225045076
Category: Condo / Town Home
Listed by Coldwell Banker Realty
